當前位置: 首頁/產品中心/全部給水除氧器
儲罐
一體化泵站
水處理過濾器
離子交換器
水處理設備配件
一諾環境亮相第十七屆上海國際水展,創新水科技引領綠色未來
一諾環境2025年Q2銷售集中營:賦能成長,共啟新程
共融共通 共啟水處理生態圈| 英諾格林成立20周年供應商大會定義水處理未來式
砥礪二十載,初心如磐;創變啟未來,同行致遠 | 集團公司英諾格林二十周年慶典圓滿舉行
融合 、提升、創新、求變-2025年Q1銷售集中營圓滿落幕
產品中心
Product Center -
全部給水除氧器
2024-07-09 11:30:20
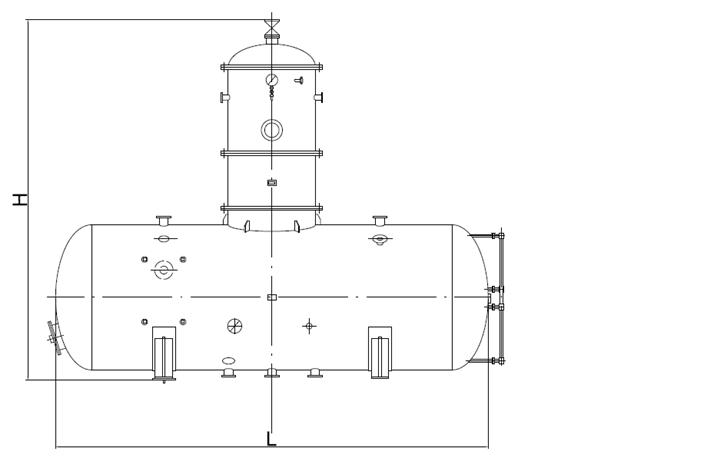
設備簡介:
除氧器的主要作用就是用它來除去鍋爐給水中氧氣及其它氣體,保證給水的品質。同時,除氧器本身又是給水回熱加熱系統中的一個混合式加熱器,起了加熱給水,提高給水溫度的作用。
設備照片:
攪拌箱尺寸規格表:
水箱
酸堿儲罐
除氟過濾器
多介質過濾器
玻璃鋼罐體
臥式過濾器
遼寧一諾環境產業集團有限公司
地址:遼寧省北票市經濟技術開發區一諾環保產業園
電話:400-082-9898
手機:18842199977
給我們留言
掃一掃,關注我們
Copyright ? 2020 All Rights Reserved. 遼寧一諾環境產業集團有限公司版權所有 遼ICP備19012322號-3